A little while has passed since my last post, and in that time there have been many snippets of regeneration news that I could have been updating you on. Here’s a whistle-stop run through, so read on as I cover the potential reuse of three closed town centre pubs; plans for cells at Reading police station, if not yet the gaol; a closer look at the library; and maybe a few blocks of flats just for good measure.
Retail & Leisure
In recent days, an alcohol licence application has been submitted by “Funbox“. They look set to take a big chunk of the Broad Street Mall previously occupied by New Look and, more recently, the temporary vaccination centre. I suspect an entrance from Queens Walk will be added, in addition to the access internally from the mall. The operator appears to have two brands, Funbox or Gravity Max, so it’s unclear exactly what’s planned for Reading. It seems likely to include an amusement arcade, as well as food and drink. Reels of paper ticket winnings have been replaced by an app to allow points to be redeemed for prizes, in a family-friendly leisure offer that Reading has lacked. It should complement the Spinners basement bowling/golf/darts venue and The Biscuit Tin cinema in an emerging leisure-anchored quarter for the town. This portion of the mall will not be affected by the residential scheme slated for the southern part of the mall that I covered last time.
I am told the Bowl Central “Pins and Prizes” centre planned for the former Dawson’s music store is still happening, but likely now scheduled for the new year, following delays with their previous new site opening having a knock-on impact here.
Further back in the pipeline, the unthinkable has happened. We have a “For Sale” sign on the Lower Ship / Horse & Barge building on Duke Street, after a multi-decade mothballing by reclusive owners Samuel Smith’s brewery. This prime riverside site is a well-known local talking point, with various rumours as to why it’s sat empty for so long. A sale could be the light at the end of the tunnel in rejuvenating this derelict corner.
House of Fraser has officially begun a closing down sale. A staff member told me 4th November would be the final closure, as the chain winds up multiple sites across the country. The loss of House of Fraser has been rumoured for such a long time that it isn’t a huge surprise, but the metal grills shuttering on three floors of the Oracle is going to have a significant impact, not to mention the sad loss of jobs at the store. The intention is to relet individual floors, or part floors to new retail & leisure operators, but no tenants have yet been confirmed. My suspicion is that there will be some significant investment needed in the building to update and reconfigure the space before we see new arrivals. The previous Hollywood bowl plan is not being progressed, with mall-owner Hammerson keen to keep more of the space in fashion retailing use, given the loss of both original anchor department stores.
The former Debenham’s end is the subject of larger redevelopment plans that I’ve covered previously. The planning application has yet to be approved, with some technical objections from the environment agency possibly leading to the hiatus of activity on the planning portal. Potentially some revisions could be in the pipeline. The availability of the Lower Ship, as mentioned above, could conceivably be in play here. Kings Walk is starting to thrive with multiple new restaurants opened or opening soon. Could the Oracle be thinking of how to better integrate or extend their proposals to the east? What we do know is that Franco Manca and Real Greek have closed – both confirmed to me that building redevelopment was the reason for their exits, and both would like to return to the town centre with the right opportunity.
On Broad Street, a ‘Paul’ french bakery is proposed, and Sports Direct has expanded by moving across the road to take the cavernous former Clas/Woolworths site, including returning the first floor to retail use. Game is now located within the new Sports Direct, at the very back of the store, if you’ve packed sufficient supplies to conduct a venture there and back. The Oracle’s Game has therefore closed, adding to their headaches, although Office is fitting out a new store on the upper level.
On Castle Street, plans to restore and extend the Sun Inn are being considered by the council. The restaurant would be run by Heartwood Inns and feature a large landscaped beer garden on the current car park.
Culture & Arts

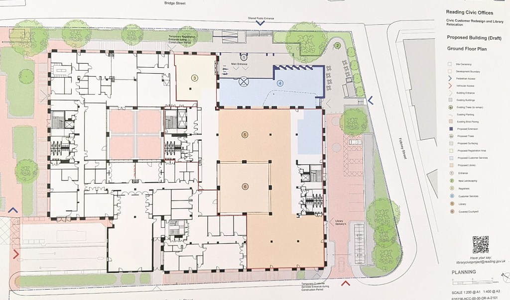
Plans for the relocated library were revealed in the summer. Facilitated by a government levelling up grant, the idea is to move the central library provision from Kings Road to the civic offices on Bridge Street. The building will be extended at its existing entrance to provide a larger reception area. The library itself will be housed in a chunk of vacated office space on ground and first floors. The highlight of the scheme is actually not the front foyer extension but a plan to roof over an existing internal courtyard to create a new hall, shown illustratively here for talks. This should allow the library to broaden its use, and gives the civic offices a more coherent overall function as the council’s presence in town.
We’re still waiting to see details of the “Hexbox” project to extend the Hexagon that was part of the same funding process.
Plans for the Purple Turtle Playhouse, a new flexible venue proposed on the vacant property next door to the iconic nightspot, have been submitted. But once again, a challenge from the environment agency is last activity on the planning portal.
I’ve heard the Gaol is on the verge of a sale to a foreign investor, but we’ll believe it when it happens. An Arts centre is still some way off unless the buyer is of philanthropic intent.
Hotels
Work on the Thackeray scheme, a 104-bed apart-hotel and courtyard behind Queen Victoria Street is supposed to start work imminently, taking two years in total. The second phase on the site of Revolucion de Cuba, and incorporating The Bugle pub, will see a 157-room Jury’s Inn. But this phase is not yet scheduled.
A third iteration of plans for Great Brigham’s Mead on Caversham Road have been submitted. Rather than extending upwards by two floors, they now plan one additional full floor, and then to replace the roof but including accommodation within it, meaning essentially two extra floors of usable space from a one storey extension. It seems a credible compromise in the face of local complaints about the previous proposals. The new concept is that the upper floors will be serviced hotel apartments, above residential apartments in the converted lower floors. The residential scheme already has a website.
A small 18-room B&B is proposed on a postage stamp plot on Blagrave Street.
Residential
In the past day or two, a new scheme has emerged, with initial contact from developer Peverill to the council around a proposed 570-home project in four 11 storey blocks to replace the vacant low-rise office buildings known as Napier Court. No imagery is yet included, as the developer is just ascertaining the subsequent documentation it will need to provide with its formal application. It’s effectively a continuation of the shorter section of the Thames Quarter development all the way down Napier Road. A few minutes walk to town in one direction, and Tesco in the other, with the meadows on your doorstep, this does actually seem to be a much better use of this space, and I’ve often assumed it likely while trundling into Reading station. It will however, ironically enough, block the view of Kings Meadow from the proposed “Kings Meadow View” development on the DFS site across the tracks. No news on the latter since its initial public consultation.
Further along Napier Road, a good bet is that Tesco is contemplating housing on under-used parts of its car park, in the same way as it is planning on Portman Road.
Developer S2 is working up plans for 260 homes on the former police station on Castle Street, according to its website. It’s unclear how long this concept has been published online, but I’ve seen no press coverage or formal plans submitted. The same developer has permission to redevelop the old Drew’s shop, albeit with more modest conversion/extension plans rather than the full demolition and rebuild they’d originally proposed.
Major schemes north of the station appear stalled at the moment, although a planning appeal ruling at the Aldi site is due imminently. Regardless of that outcome, it doesn’t appear work at the sorting office or the shopping park is likely to begin anytime soon, but eventually the area is likely to accommodate a huge new residential community. The Covea insurance building in Norman Place has also been sold for residential development with 230 homes mooted.
Sensible plans have come forward for the listed Natwest building on Market Place, but the long-vacant period buildings opposite remaining obstructed by some kind of issue in planning since new owners came on board. And we await a likely residential proposal for the old central library – take a look at the context sketch of town used by the Oracle to show their scheme… curious.
Offices
The major development at Station Hill races ahead, with a spring/summer next year completion. To my knowledge, no tenants have been announced but rumours abound. The landscaping around the building and in front of the station will transform the first impressions of those arriving by rail. The link bridge to Friars Walk is in place, just visible above. The new apartments lining the route are partially open, accessible only from Friar Street at present.
I hope you found those updates useful – thank you to everyone who drops me a note when you pick up any news! And do always feel free to share your thoughts on the changing face of town.









Great. Loads of plans I was unaware of. This is all very exciting for the town
LikeLiked by 1 person
Thanks – really useful update. Exciting times!
Given how archaic and non-user-friendly RBC’s planning portal is, collating this information is positively heroic.
LikeLiked by 1 person
Haha, thanks. You gotta have a hobby
LikeLike
So informative, thank you.
LikeLiked by 1 person
Thanks, I’m always interested in what is going on in Reading and your website has made it much easier to follow.
Do you have any idea on whatever happened to this proposal?
https://www.broadwaymalyan.com/projects/no-1-reading/
It’s another eyesore in Reading that has been sitting dormant for ages in a part of town everyone who arrives by train sees…
LikeLike
Thanks, yes it would be great to see that project come forward. I did contact the developer some time back and the scheme has become unviable financially. More permanent hoarding has since gone up. Hopefully the Station Hill completion will lift the area and the value of the site, helping redevelopment become more viable.
LikeLike
Thanks for these updates, very useful and interesting.
LikeLiked by 1 person
Late to the party this time – I usually see these as they come out – but another really useful article and interesting read. Yours is one of an ever-dwindling source of informative and well-written news about this uniquely charming town (as if the Chronicle and the other one would ever actually contact a developer to find out more information!). Thanks for the fine work.
LikeLiked by 1 person
Thank you. Very kind
LikeLike
One of the most useful features of House of Fraser was the access to/from the rooftop carpark! I guess that’s being closed off.
LikeLike
Yes, entrances from the car park roof through into Debenhams and HOF are now both closed. But there still is a main entrance to lifts and stairs that emerge in the middle of the mall by The Perfume Shop and Ernest Jones
LikeLike
[…] September Round-Up: Arcades, Libraries, Pubs and more […]
LikeLike
[…] September Round-Up: Arcades, Libraries, Pubs and more […]
LikeLike