The major proposals to regenerate the eastern end of The Oracle were submitted in late 2022. On Wednesday, the plans will finally get a decision as to whether they can proceed. Read on for my trailer as to what might happen…
We nearly got there in early December, with a debate and decision due at the planning committee. I normally watch these on the council’s live stream if there’s a big project on the billing. December’s clashed with my work’s Christmas drinks in town. Whilst genuinely tempted to stay home and watch, I felt that would mark a new anti-social low point, so into town I went. Walking down Chain Street, two smartly dress chaps literally boomed “section 106” as they passed me. I instinctively turned around and followed for a while. They must be Hammerson people, but why weren’t they still at the civic offices? Something very odd must have happened. I could easily hear their conversation trailing five yards behind. I wondered if I’d catch some juicy anti-council ranting, but they were just talking about their shopping centre in Bristol. I turned back for plan A and the pub, unsure whether I’d yet committed a crime. It turns out, the councillors had immediately deferred the application for a site visit. I mean, you’d have thought they would have been familiar enough with The Oracle. But let’s give the benefit of the doubt here – a half hour walk and talk around the site with the developer probably gives much more value than the oppressively enforced Jackie Weaver-energy 5-minute allocation the applicant gets in the council chamber. Nevertheless, the two month delay isn’t exactly a ringing endorsement of council efficiency – likewise the three year decision timeframe.
Councillors don’t decide all planning applications. Most lower profile proposals are determined directly by the council’s own salaried staff, or officers as they call them. The government is currently pondering expanding that further and freezing out the local politicians from nearly all such matters in a Sir Humphrey-esque power grab. I presume the thesis would be that councillors just reject everything. I’m unsure, because I also see some curious decisions from the council’s team. Whilst I don’t doubt that they simply unemotionally and professionally apply the adopted policies to each decision, where there’s wriggle room they sometimes fail to see the bigger picture. Forgive this aside, but I think it’s worth the meander…
A brief article on the BBC local news caught my eye, relating the Rising Sun on Castle Street. Looking into what seems to have happened here, the owner Heartwood Inns bought the dilapidated Sun Inn a few years ago. They have painstakingly restored the pub, built a modern extension to the rear, and created a delightful garden area on the former scruffy car park. They secured a number of planning consents to complete these works, but they actually implemented one more sign than their paperwork permitted. This is the painted-on words “Rising Sun” and the two bolted-on reading lights to illuminate it that you can see at the top left above. Made aware / caught out on this transgression, they’ve applied for retrospective permission, which was denied, entailing a planning appeal. Some 18 months after applying for that retrospective permission, we have an independent inspector hauled in to find in favour of the applicant. So our little Pixar lamps can stay in situ after all.
The decision to deny permission for this signage, and the 18-month “battle” as the BBC calls it, is probably the most daft thing I’ve seen following local planning matters. Excessive concerns of the character of the building and conservation area saw the council reject and then dig in against a very modest proposal. Potentially in its own right, this one intervention might be in technical breach of a council policy to the tune of two screw-holes on a listed frontage, but seen in the context of the full restoration project, this scheme is literally the best thing that’s happened to the Castle Street conservation area in living memory. Even the Conservation Area Committee, who do sterling work to save the world one sash window at a time, didn’t object to the signage. Now, if the applicant was opening a vape store, intent on emblazoning “Vap’z R Uz” on the wall then the council would have been doing god’s work fighting them off. But perhaps the technical policies wouldn’t allow such ‘vapist’ sentiment to creep into the decision making process? My point is the council machine can sometimes act like a kind of human-powered AI, whereas an independently minded, human representative might be able to apply some common sense in the name of their fellow local residents. And therein I think I’ve reinvented the elected councillor.
Back at the Oracle, the council machine has generated 182 pages of thorough analysis – even longer than my articles. And with so many gazillions of policies that read like Arnold Rimmer and his Space Corp. directives, you’re always going to find policies that both support and conflict with a big proposal like this. The officers find in favour this time, but there’s probably enough wriggle room for councillors to draw their own conclusion. So let’s take a look at some of the factors they might consider.
In overall terms, Hammerson (the Oracle’s sole owner) is a UK-listed property company focussed on city centre shopping malls. They’ve sold off their out-of-town ventures, meaning we now have a British company whose fortunes are effectively entwined with the health of the high street. So I place them as the good guys, rather like Heartwood above, meaning I start from a point of assuming good intent.
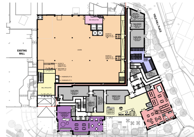
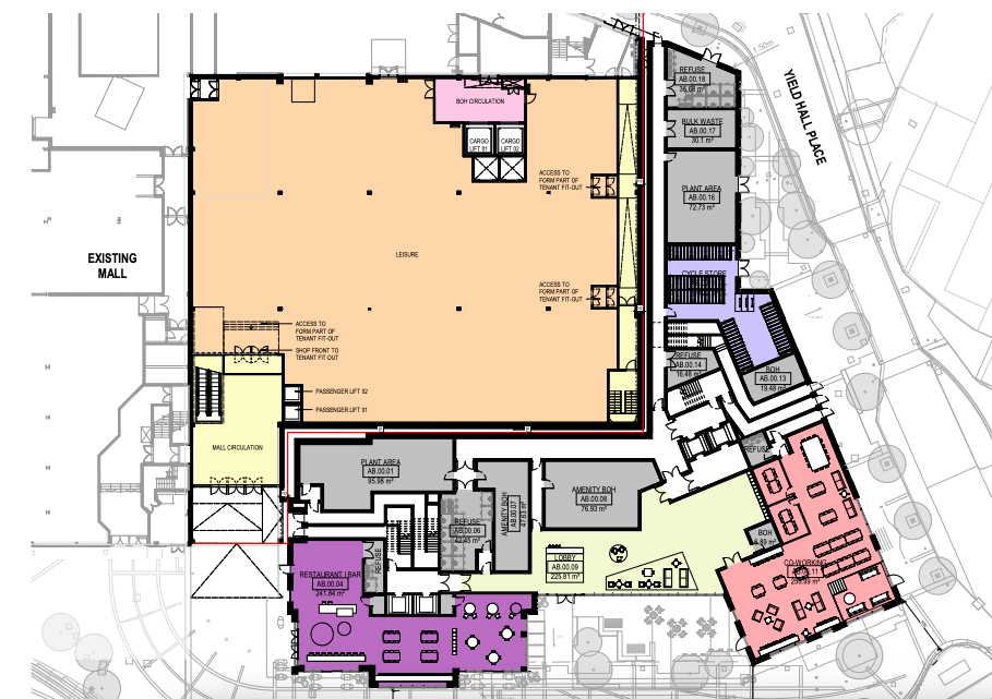
The plan for the old Debenham’s is effectively, when viewed from above, an image-crop in from the bottom right, reducing its footprint to about half the original, creating a retail/leisure unit on each of the three levels. The freed up L-shape become a residential development of 218 apartments with a ground floor small restaurant and co-working office space. A new riverside entrance to the mall is included with escalators up to the HMV/Next area, helping that feel less like a dead-end. They’re going to have the challenge of keeping another set of escalators working. There seems to have been another spate of breakdowns lately. Before Christmas, I tried to cut through the whole complex but the diversions were so circuitous that by the time I’d got from one end to the other, MenKind had already relocated to a new unit. They must have had a secret passage to transport the stock or something. …On reflection, I think I did see a squadron of novelty drones passing overhead so maybe they did it by air?
Comparing to what we currently have, we swap three empty vast floors with three mid-sized units that can hopefully be occupied quickly. And we swap two empty riverside restaurants for one new unit. On paper, there’s a net loss of retail space, and I feel most locals would feel that’s regrettable. But given we’re losing empty space and hopefully gaining new occupiers in the smaller units, plus the much-needed additional mall entrance, we should end up better off, without even having to discuss whether the addition of 200 apartments above is a positive or negative.
The cinema site is a slightly different equation. We go from 10 screens to 7, but they’re much smaller halls, with a seating capacity of 511 in total, compared to 1800 at present. Restaurant space is reduced from 670m2 to 345m2, although again, half of the existing restaurant units are empty. Vue would re-occupy the replacement shrunken cinema, but I assume construction work would mean a couple of years doing without. The cinema is in need of renovation – the world has moved on and the technology and comfort of the existing facility are now sadly lacking. The entrance foyer is a memorial to a bygone age of bustling kiosk queues and dot matrix listings. It does need to go, but I’d imagine most people would rather a major refurbishment without the downsize.
It frustrates me that nobody has found a good way of making a cinema multi-purpose. Why not a conference centre by day and cinema for evenings and weekends. I remember being away at university and the plushest lecture theatre with the comfy seats doubled as an excellent student cinema. There must be a way to team up the spoken word with the silver screen? There, I’ve given my business idea away for free.
We know Vue has actually signed up for a few more years on the existing site. Four more, I believe. And the materials are clear that the cinema site is the second phase, after the Debenham’s site is done. The planning committee could be tempted to turn down the cinema plans and approve the other, especially as the heritage impact of the further 218 flats above is greater on the southern plot. But I think you can’t hold back change. I would approve it, and hope that in the intervening couple of years before anything happens with the cinema that amendments come forward that give us something slightly more ambitious. That’ll probably only transpire if you all rediscover your taste for a night out at the pictures.
As mentioned, the phasing means we first get the cropped department store freed up for reoccupation. Temporary giant adverts would be applied to the new perimeter walls before the L-shaped apartment scheme is then built around it in the ensuing phase. And then finally work would cross the Kennet to finish the wider project.
On balance, I hope (and suspect) the project will be approved. The main reason the cinema site might get knocked back is the townscape and heritage argument, with an objection submitted by English Heritage. In my opinion, the taller elements are set back so far from London Street, as shown above, that we negate this concern. And it would be a perverse outcome, to reject the demolition of a 1990’s shed-like structure with the architectural merit of the Moto Services mothership, on heritage grounds – especially when the proposed replacement frontage is of equal height and includes such old fashioned features like windows. But who knows? This is planning and it’s an unpredictable story, worthy of a movie perhaps at times. So grab your popcorn and settle down for the show on Wednesday evening. Maybe they’ll even put it on Screen 3 at Vue?
Feel free to share your views. No registration required.







Excellent article, making sense of something none of the local news outlets have bothered with. I tried reading the planning documents earlier and couldn’t make heads or tails of it, so thank you for setting out the issues so simply.
LikeLiked by 2 people
Thank you. Glad it’s useful. There are several other considerations beyond those I’ve concentrated on. Dwelling sizes, affordable housing quotas etc, but I think a lot of people just want to know how their town centre will change.
LikeLiked by 1 person
Brilliant article as always.
thanks
LikeLiked by 1 person
“It frustrates me that nobody has found a good way of making a cinema multi-purpose. Why not a conference centre by day and cinema for evenings and weekends“
My previous employer did use the Vue cinema screens for hosting various all employee meetings so it’s not an unheard of concept!
LikeLiked by 1 person
Interesting, thanks. Maybe they could make more of that??
LikeLike
I’d imagine the Debenhams plan will sail through. Think of all that lovely council tax revenue coming from yet another block of rabbit hutches!
LikeLike
As a committed cinema-goer I’ve taken my kids to the Vue once or twice a month since they were tiny and I’d hate to be without a town centre cinema for even a year or two. Seven screens instead of ten for the new one sounds about right, but I’d hope they wouldn’t go too small – the current Vue’s smallest seats just 40 and it’s a much less visual experience than their biggest screen.
LikeLiked by 2 people
Ugh… so we lose two good restaurants for more flats, and now we must do without the cinema and put up with another high-rise. Why not retrofit the existing structure instead of starting over for the umpteenth time and destroying the skyline. There must be dozens of London hipsters who would love a chance to boast about living in an ex-Debenhams 90s brutalist structure.
LikeLike
What was the decision?
LikeLike
Approved. I’ll add a retrospective note to the article.
LikeLike