London-based developer Thackeray has revealed new plans for a Jury’s Inn on the site of Revolucion de Cuba, formerly occupied by HMV for those with long enough memories. The hotel chain had been in line to anchor a redevelopment of the old Bristol & West Arcade opposite the town hall, but that scheme fell through and the site sold on. The online consultation event, organised by Reading Civic Society, revealed further details…
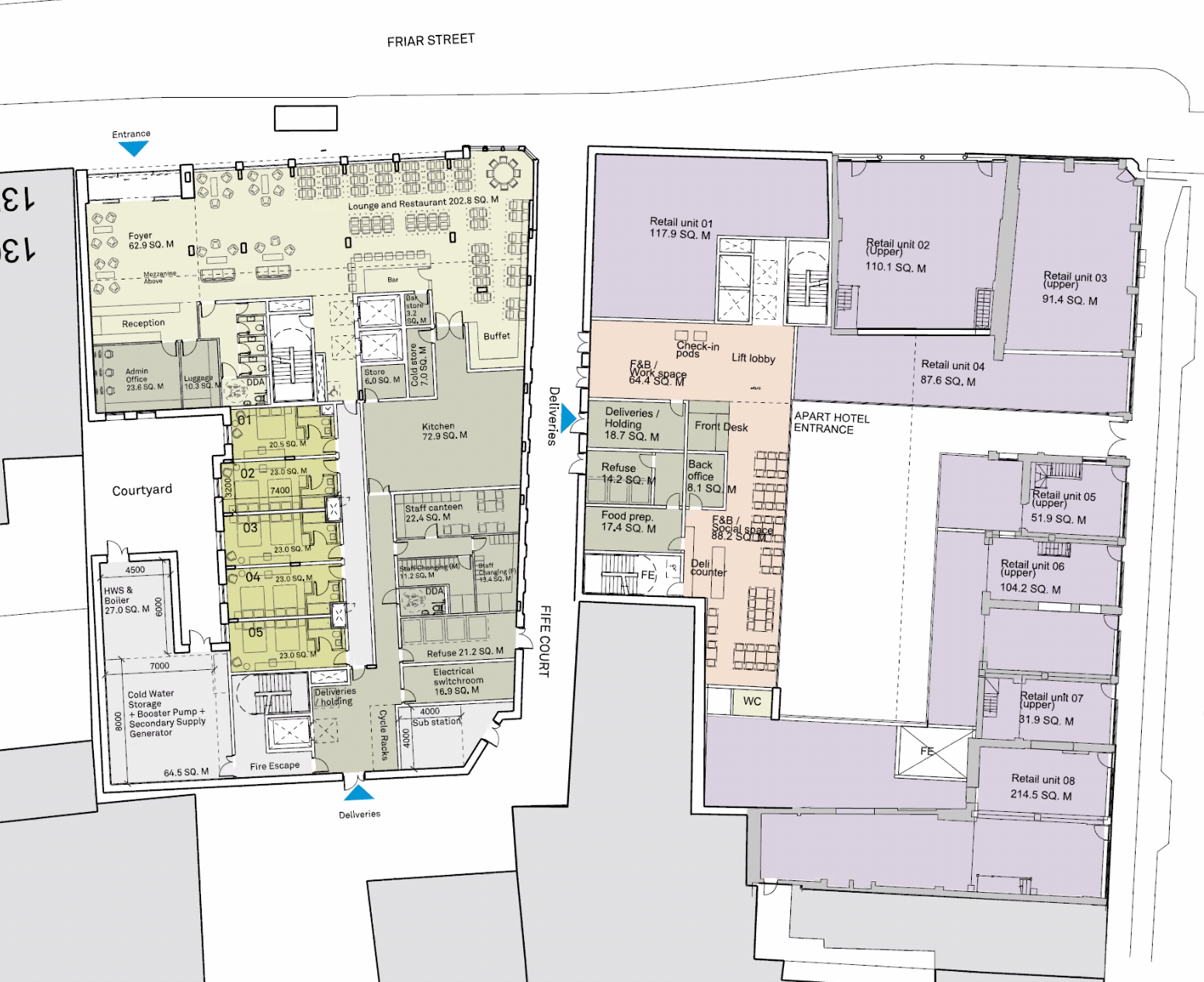
Thackeray already has approved plans for an “apart hotel” on the corner of Queen Victoria Street, with a courtyard of small retail units behind, where once-upon-a-time Burger King had an extended seating area. Those plans remain, but have been enlarged slightly with the inclusion of the rear portion of WH Smith, whose frontage remains accompanied by an additional floor above. A planning application for these adjustments to the approved scheme is due imminently.

A second application, also due in the next month, will propose the demolition of the opticians and Cuban-themed bar, but the retention of the front portion of the Bugle pub. The Bugle sounded for the last time recently – as did The Horn, in a bad month for brass-themed drinking establishment (perhaps the Hope Tap is made of chrome?). To the delight of those arguing for greater value to be placed on Reading’s heritage, Thackeray plans to incorporate the Bugle building into the 157-room new hotel, with a 4-to-7 storey wrap-around extension designed to blend in with the existing colouring and materials of Friar Street.
The alleyway alongside the Bugle, which is apparently known as “Fife Court”, will be given pedestrian priority. However, at the consultation there was some scepticism as to the viability of these images of festoon lighting whilst also functioning as a vehicle route to a delivery yard behind the hotel. Fife Court will contain a side entrance to the Apart Hotel, which can also be accessed through the retail courtyard behind Queen Victoria Street.
There aren’t many developers that would retain a building like the Bugle despite having no real protections that require it. The developer hopes, and I agree, that it will add interest to the scheme and maintain a good balance of new and old that typifies Reading. Hopefully the developer can get moving quickly on their Apart Hotel and courtyard scheme, and this second more significant hotel can follow closely behind.
As for the Bristol & West Arcade, the new owner plans a more piecemeal redevelopment, which has begun with an application to convert the existing building to flats. Further applications for new-build residential development behind it are expected. It’s clear Jury’s Inn has been looking for a way into central Reading for a while now. Hopefully for them it’s second time lucky with the Thackeray site.
As always, comments welcome – no registration required.
Follow @readingonthames




For pities sake how many others are queuing up to completely ruin our town…. And the council allowing it.
LikeLike
“Completely ruin”? Have you looked above the Eye Site optician’s recently? If you think that’s worth saving, then it’s worth popping into Eye Site sometime!
LikeLiked by 1 person
Do you think that modern building next to the Bugle adds one iota of value to Friar Street? Really. You simply cannot have looked at any element of the proposed scheme which includes the restoration of the listed buildings on Queen Victoria Street, we have seen the images they are in a dreadful condition (thus all the scaffolding)
LikeLiked by 1 person
Genius – love the trees, complete fabrication and couldnt possibly fit on the path. Would work if that road was closed to traffic. Wish the town still had a tram system ..and compass point bus stations . The town is completely dedicated to bus stops in random locations.
LikeLiked by 1 person
[…] Jury’s Inn Plan Swaps Sites […]
LikeLike
I walked past the B&W arcade yesterday and the front was open with some work going on inside. Do you know what the plan is now?
LikeLike
B&W is just a flats conversion of the existing buildings now. They were trying to add another floor but the planners didn’t allow. Unclear whether they’ll progress some kind of new build behind the existing older buildings.
LikeLike
[…] on the Thackeray scheme, a 104-bed apart-hotel and courtyard behind Queen Victoria Street is supposed to start work […]
LikeLike