I’ve covered this major scheme already, but with the full plans now visible online we can see all the details. The proposed 449 build-to-rent apartments are split either side of the river, with 202 on the Debenhams side and 247 on the Vue side. The cinema stays but is reduced from 11 to 7 screens. The visual above shows the scheme from the east, with the buildings reducing down to five storeys at the London Street end, with rooflines vaguely echoing the former bus depot that many will remember from the site’s former life.
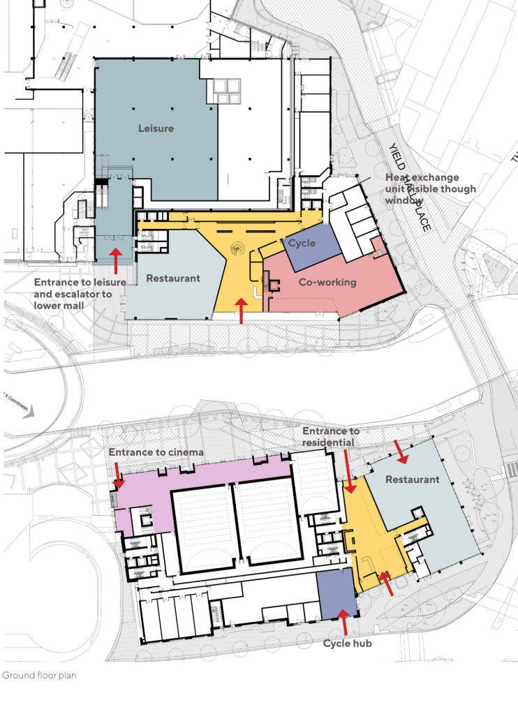
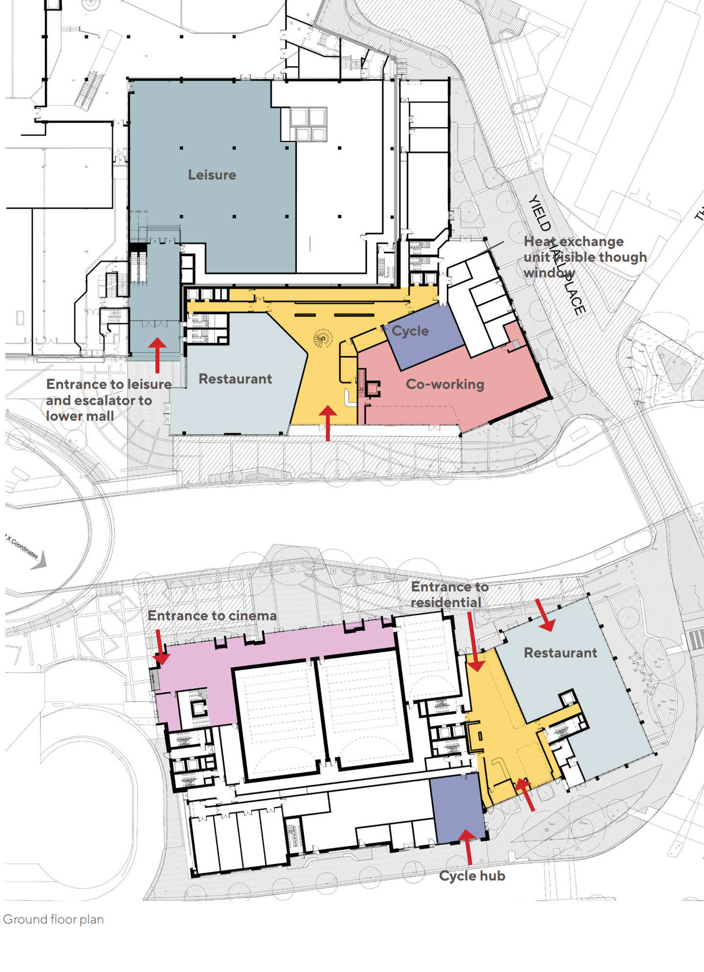
Above is the Debenhams riverside corner, with a new entrance to the mall. If you look closely on the left you can make out two escalators that would take you up to the lower shopping mall where HMV still lurks. Also accessed from this entrance would be a new leisure unit at the riverside level. It’s not a huge space, due to the retail back-of-house space that’s retained, but I could imagine some kind of sport-themed leisure/bar operating here – a Puttshack or Sixes etc. A restaurant would take the protruding corner of the plot enjoying high visibility, but remember we lose the existing two restaurants, currently Real Greek and Franca Manca. The planning statement suggests that existing tenants will be offered the opportunity to relocate elsewhere within the Oracle so it might not spell the end of your favourite restaurant. The remainder of the riverside frontage becomes the residential entrance and a two-storey co-working office. The intention here is to keep the area in use all day rather than just for the lunchtime and evening restaurant trade.
Also above we can see the layout of the Vue side of the Kennet. The cinema stretches along more of the riverside than expected, with spill out space implying its intention to operate as an all-day cafe as well as a cinema. A subsequent visual still shows Vue branding, which suggests they have influenced the proposed design of their new home. Undoubtedly the existing cinema is showing its age, and also sadly proving too large other than for the few days after a major new release. The new layout proposes two large screens, each occupying both storeys of the new unit, with five smaller screens – one on the ground floor and four upstairs. A large restaurant takes the eastern corner site, with residential lobbies in between. This is a surprising reduction of three restaurants (four, if you include the vacant former hamburger pitch). I would presume that the ground floor frontage demands from Vue have influenced that, as well as the need for space to service the apartment towers above.
Above is the outlook across the river, with Vue branding visible on the right. Note there’s a blank frontage at the left where a small cinema room backs directly onto the riverside, as shown on the floor plan. Potentially this would be covered in digital advertising for the latest films. With the lengthy frontage to the river that could be in use all day as a cafe, you can see why Vue might be the big beneficiary of this reallocation of space. Although, it is unclear how long the cinema redevelopment will take, so the benefits of the new site will come at the cost of many months being out-of-action. Documents suggest the Debenhams site will be phase one, so it might be a little while down the line before the Vue side progresses.


The planning statement emphasises The Oracle’s focus and ambition of maintaining its position as a regional shopping magnet. The floor plans below show a significant chunk of space still allocated to retail on the two shopping mall levels. There is the option for a single operator to take both floors. And judging by the back-of-house space provided at riverside level (to the right of the leisure unit on the diagram earlier) it might be inferred that that’s the preferred outcome. It is not stated who would occupy the retail element. The document says that the current Next Home & Beauty has “a very concessionary agreement…which leaves the landlord with all of the occupational costs”. But potentially Next could consolidate their fashion and home into this two-storey site, in preference to their slightly awkward unit that was crafted out of the old Waterstones.
There is another possibility. The document reveals that, as expected, the previously approved plans to replace House of Fraser will not progress. However, it says that “Hammerson remain committed to using this space (House of Fraser) for retail and leisure operators. It is expected that revised proposals for the sub-division and repurposing of the unit will come forward during 2023 to secure the long-term reoccupation and investment in the western end of the shopping centre”. This raises the possibility that House of Fraser (or Frasers or Flannels etc) might relocate to the reconfigured two-storey space at the Debenhams end. Speculation on my part, but clearly there’s still a question mark over House of Fraser, despite it being invited to stay longer than anticipated due to Debenhams demise.
I would also expect any subsequent proposals at House of Fraser to maximise the riverside frontage for restaurants, particularly if the above implication that residential is not on the cards here holds true. With the new library opposite, a Bridge St frontage might be more desirable for dining, and they could maybe add rooftop space too. And this might explain the reduction in restaurant use at the Vue end. But that’s a lot of joining of dots…


We also see proposals for further landscaping, including 37 new trees (34 net additional). Environmental credentials extend to the water source heat pump proposals for energy, driven from the Kennet. However to term Yield Hall place as a “woodland walk” is a bit of a stretch, even though it should be an improved environment to the current abandoned side of Debenhams.


Plans also include the reworking of the spot beside the Horse and Barge carpark into a “pocket park”. I’m not sure that will work without something happening to the former pub in parallel, otherwise this corner might feel a bit isolated or even unsafe. But I’m sure the planners will be scrutinising that.


Overall, this scheme is a major investment in The Oracle. Clearly it involves a substantial move towards residential, but given the woes of the retail sector and sheer demand for housing in Reading as hybrid home/office workers seize their chance to leave London, it’s not surprising. As long as the materials used are high quality, I’ve no problem with the height of the buildings, which are still much shorter than the Station Hill project. It’s positive that Hammerson have retained ownership of the centre, having sold off many others to balance the books. They have a long term plan for The Oracle, and I think that’s pivotal to the vitality of the overall town centre and so crucial to Reading’s attraction as a place to live, work and visit.
Follow @readingonthames






[…] Oracle East plans – detailed plans published […]
LikeLike
As always detailed information and insightful analysis – thank you 😊
LikeLiked by 1 person
Good read. But all I can think of now is Rogers and Hammerson
LikeLiked by 1 person
[…] Oracle East plans – detailed plans published […]
LikeLike
was wondering if you guys had any section drawings along the river side or perpendicular to the river ?
LikeLike
You can see some elevations from page four of the planning docs on the planning portal. Application number 221917
LikeLike
[…] with further flats, incorporating a smaller replacement Vue cinema at lower levels. I featured the scheme when it was submitted more than a year ago, so I’ll just cover the changes […]
LikeLike