
Reading’s long wait to restore town centre ten-pin bowling could be about to end as Hammerson submits a radical proposal for a leisure-led makeover of its House of Fraser department store. Plans also include a food hall, an indoor golf complex, a new cafe on Bridge Street, and some remaining retail space inside the mall. Undoubtedly the most significant development at The Oracle since its final phase linking to Broad Street opened in 2000, let’s take a look at the plans and how we’ve ended up here.

Regular readers will know I’ve been wittering on about bowling for years. As I opened up this week’s planning applications to these amazing CGIs, I wondered whether it was a mirage. The resolution is so clear I’ve even zoomed in through the window to individually count a full 26 glorious lanes – final proof, if ever you needed it, that I need to get out more. My enthusiasm is only tempered by the fact that I fear this may be the first that House of Fraser staff hear of proposals to shut their store. No formal plans have been announced, and this is only a planning application. It is possible this is an elaborate ploy by Hammerson to prove to Mike Ashley that he’s not indispensable and to stop trying to negotiate rent reductions. Yet examining the planning documents reveals that a bowling operator is already lined up – evidence enough for me to conclude that House of Fraser, in its current form at least, is indeed set to close after 20 years in the town.

On reflection, the demise of House of Fraser isn’t wholly unexpected. Closures have taken place across many towns and cities, and the Riverside level of the Reading store has been a peculiar sequence of unsuccessful experiments for a while. The proposals show the top floor retained as a large stand-alone retail store. Potentially Ashley might be keen to run one of his brands here. Less likely, the same outcome could occur for the other retained retail unit behind the bowling on the middle floor fronting the internal Holy Brook Mall. But the planning documents make no hint of on-going Ashley involvement at the site.

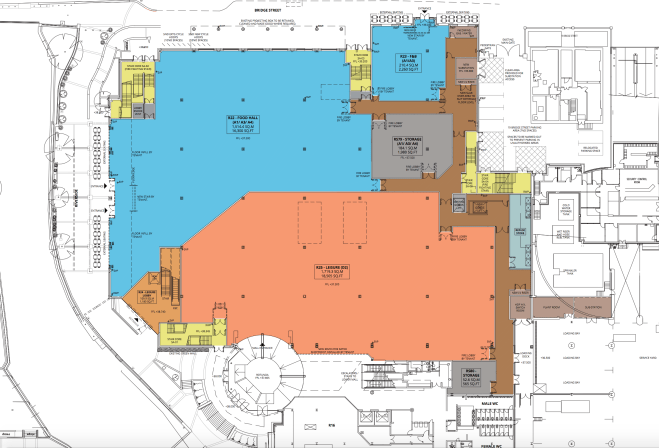
The ground floor plans feature a 16,000 sq ft food hall, with large new outdoor riverside dining area made possible by the removal of the protruding first floor overhang. No operator is identified, but the idea is very much in fashion – large communal seating surrounded by multiple small kitchens with their own food offer. The signage is indicatively shown as “Bridge St Market”. I’d prefer a more historical reference of “Seven Bridges Market” but naming is speculative with no tenant in place. The enhanced riverside frontage is a major improvement and finally maximises the potential of that stretch in a similar way to that achieved at the Debenham’s end with the new restaurants there. A leisure unit takes the remainder of this lower level, provisionally an indoor golf concept accessed from within the mall.

The middle level sees a 26,000 sq ft bowling centre share the space with smaller retail unit within the mall. The bowling unit is accessed from an outside entrance on the riverside via stairs, an escalator and a lift. This provides a prominent entry point, and deals with any complexity around access after the shopping centre has closed in the evening. If I were to open speculation, the Hollywood Bowl website includes a request to developers for sites matching this criteria. (And they were one of several operators who responded to my emails a year ago saying they were keen for a site in Reading).

The top floor remains allocated to retail, and would still constitute a very large unit in its own right. If Ashley is to remain, potentially Flannels could be his preferred brand, but no information is supplied at this stage. Also included is the overall scheme is a remodelling of the House of Fraser staff entrance to provide a cafe on Bridge Street. Architect blurb makes a point of the benefits to Bridge Street by adding more interest and vitality.

The loss of House of Fraser is a highly significant moment for the town that was one of the first to boast the big four department stores as of 1999. But times move on, and Reading is very successful at repurposing its buildings once they’ve run their course, albeit most often into apartments.
It seems we finally strike it lucky in our quest for ten-pin bowling. We’ve found a spare department store. Let’s hope these plans don’t end up in the gutter.
Follow @readingonthames
Thank you for reading. Comments welcome – no registration required.
Awesome article
Well put together
Collaborative tone
Informative and passionate
Thanks
LikeLiked by 2 people
Why the obsession with Bowling .. ? Surely theres better things that could be brought to Reading. I wouldnt mind a better night club / display space than sub89 which is now the only choice for Reading youth ..until the council decides to close it too.
LikeLike
This is great news, could do with ice rink there and laser quest to
LikeLiked by 1 person
Sounds like a fantastic idea hope it gets the go-ahead
LikeLiked by 1 person
Definitely need a bowling alley and somewhere for youngsters to hangout in town!
LikeLiked by 1 person
[…] Bowling, Golf and Food Hall to replace House of Fraser […]
LikeLike