
The story of Station Hill is well documented. In fact, it would be hard to dispute after 15 years that it’s progressed from “story” comfortably into “saga” territory. I certainly feared the next re-classification might be to “myth”. Yet this week, finally, firm new plans have been published. The proposals relate specifically to the Friar’s Walk plot, where a disused shopping arcade has been boarded up since 2004.

For some time now, the Station Hill, Friar’s Walk and Telecom House sites have been split into six notional development plots A to F. Plots E and F at the Friar Street end were originally envisaged to be built last. Under the revised plans, they’re to come forward first. The previous plans involved an open-air pedestrianised Friar’s Walk shopping street sloping down to Garrard St, with an adjacent perimeter residential block with internal public courtyard.
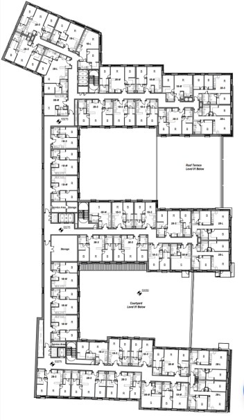
The new plans have changed significantly. I do wonder whether the architects have taken their latest brief rather literally when designing a revised scheme for plots E and F. Here’s plot E when viewed from above:

And, maybe I’m seeing things, but the smaller block F appears similarly eponymous?

I’m certainly looking forward to the more adventurous geometry of blocks A and C! And with the separate hotel tower proposal at the corner marketed simply as “No. 1“, perhaps Garrard St will be renamed Sesame Street?
Aside from the change in shape, the density increases, up to 538 apartments, all of which are now to be managed as a single rental scheme with generous communal features. It’s these new elements, whilst hugely beneficial to residents, that do come at a cost to the public space. The open courtyard from the previous perimeter block proposal has gone, and the new garden areas created within the gaps of that capital E are resident-only. And the most prominent Friar’s Walk ground floor unit is planned as a residents only cafe accessed from within the apartment complex, which I think is the detail I’d most like to see altered on these plans.
Fifteen years is a long time for this site to sit wasted. As such, I think most of us have just reached the point of saying “build whatever you want, just build something. Anything.” The new owners mean business and have a clear plan and an operator on board for the apartment scheme. Evidently, there’s been a lot of collaboration with the council to get to this point so expect this to go ahead broadly as submitted this week. Perhaps then, I should give you some brief respite from my traditional “what about a bowling alley” campaign? Sadly I can’t help myself, because in the very original Madejski-era plans a bowling alley-size leisure unit was proposed on plot F. This has been whittled down to a small community leisure space on the lower ground floor fronting Garrard St. Better than nothing, but the quest for improved leisure facilities for RG1 finds no real answers here.

Hopefully there’s still some room for minor revisions to the scheme at this relatively late stage in the planning. So let’s forget the ice rinks and indoor golf centres and suggest some more minor improvements. Here are three:
The Residents’ Cafe
As mentioned already and shown in the plan above, this space is shown at the end of the middle prong of the E, jutting out into Friar’s Walk in the centre of the thoroughfare. I understand that this kind of accommodation needs exclusive facilities. But they are already boasting a garden lounge, cinema room, residents’ gym, “woodland retreat”, garden terrace, “the alcove”, rooftop terrace, playground, function lounge, gallery and library. Surely, if they need the residents’ cafe it can go somewhere internal to the complex or on a higher storey?

The Steps
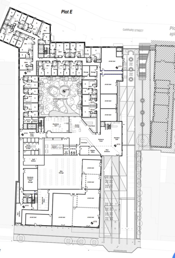
Unlike the previous plans, Friars Walk is now on the level. This creates a two-storey discrepancy where it meets Garrard St. Currently planned is a long staircase, divided into four flights. This route was supposed to be a major new link between the station and the town. That’s what we need. The pavements along Station Rd are often over-crowded as the dominance of the railway station has grown in recent years launching people into town. This narrow set of steps is not really an attractive proposition, certainly compared with the wide and gradual slope of the previous concept. If they want to maintain Friars Walk at the higher elevation then why not have a glazed overhead canopy providing shelter to escalators both up and down? I’ve definitely seen that done. I even wonder whether the dead-end section has been designed deliberately to potentially accommodate a footbridge in the next phase? If so, I bow to their forward planning, but otherwise this needs more thought because this looks more like a fire escape than a principle new pedestrian route.
The Retail Units
I know the world of retail has moved on quickly, and building any new retail provision might be seen as bold. But these new units along Friars Walk are pretty tiny. Small coffee shops and take-aways probably. Maybe if there was a narrative in the documents around attracting small independent traders this would be welcome, but I can find no such reference. Just removing a handful of studio flats from the ground floor would allow larger units, which could at least accommodate a restaurant or two that might attract custom to the area beyond the immediate needs of the residents above. I feel the retail pitches at the end near the steps, partly hidden by the the pronounced resident’s cafe might not be too appealing either.


Elsewhere in the plan, critics of the steel and glass global conquest will find solace in the brick walls proposed for Friar Street, as shown above. Note the female runner in the yellow joggers and white sports bra. She turns up frequently in the plans. I think she’s the architect’s equivalent of the Usborne yellow duck. Although she might need to speed up a little, because by the time she reaches Garrard St (below) she’s still accompanied by the woman walking a dog whilst carrying a briefcase, who in turn is still being stalked by Lovejoy. (Google’s going to have fun categorising this post! Just for you google, Property Development, Reading, Berkshire).

Here’s the developer’s verdict, as issued in their press release.
4 April 2019 – Lincoln MGT, the joint venture partnership between Lincoln Property Company and MGT Investment Management, has announced details of the first phase of its plans for Station Hill, Reading.
Since acquiring the site in June 2018, Lincoln MGT has worked hard with Reading Borough Council to develop a renewed vision for Station Hill. The combined ambition to support the economic and housing need of Reading at this key development site has led Lincoln MGT to revisit the outline planning consent. This latest application seeks to revise the first phase of consented residential accommodation to deliver 538 new homes for the private and affordable rental market.
The new rental homes have been specially designed for this market and will be professionally managed with an on-site maintenance team, concierge and a strong emphasis on communal areas. This will sit together with circa 25,000 sq ft of commercial and leisure accommodation to further enhance the public realm and create a new neighbourhood hub. The application retains the same level of affordable housing as originally consented.
Alex Aitchison, Director of Development at Lincoln Property Company UK comments on behalf of the joint owners: “Our ambition for Station Hill is to deliver a best in class regeneration project that will create the new gateway that Reading deserves. As a truly mixed-use development, it will become a new town quarter that fuses contemporary living, working, leisure and open community space.”
“Our plans seek to tap into the vast potential of this already impressive and ambitious area. We believe that our revised proposals, combined with a phased approach, is the best way to unlock this key site for Reading.”
The commitment of Lincoln MGT to delivering this long awaited scheme for Reading town centre has also been demonstrated by their programmed commencement of demolition, which is due to start next month. The public consultation process on the latter phases of the north site, between Garrard Street and the station is timetabled for later in the year. This will provide an opportunity for the community to provide feedback on the proposals.
The vision for the whole Station Hill site is for it to be a transformative project for Reading, creating a focal point for the town through substantial investment in new public spaces, landscaping, and greatly improving pedestrian accessibility.
A couple of final points to acknowledge – firstly, to the councils credit, whilst the scale of the Station Hill plans over the years have gradually become less ambitious and more “viable”, the affordable home contribution has been maintained. Some 10% of the proposed apartments will be rented out at a 20% discount, in addition to a financial contribution towards affordable housing at another location.
Secondly, from an environmental perspective, there seems to be numerous new trees proposed, several sections of green roof to supplement the planted courtyards, and I’ve never seen so many planning documents dedicated to the siting of bird boxes designed separately for all manner of different species. I remember shopping at Falcon Records in the later days of Friars Walk. In the coming years I would hazard a guess that we’ll see more Peregrines than music stores in Reading, although Big Bird might be a stretch.
At long last the Station Hill story nears its introductory chapter. Hopefully with one or two edits, we can get onto discovering what the main plot has in store.

Your comments, as always very welcome – registration not required…
My memory is that the Madejski plans offered Reading far more than these do in terms of access for the public and communal open space. As you say there is an element of let’s just get something built here but I do wonder if what is agreed to may be seen in the future as a lost opportunity.
LikeLiked by 1 person
Completely. Hopefully not too late for some minor tweaks to shift the emphasis slightly from immediate resident facilities to those for the wider town centre community and its visitors.
LikeLike
A disappointing, faceless wall of flats justified for a perceived idea that this is the type of housing locals need. Once again, the original promoted the town as somewhere, not just somewhere else. It was a development for the town not just some london commuters. A huge area of our town centre will be wasted and so will the opportunities presented by the enormous capacity of our Hauptbahnhof. We are continually told by the media and authorities that town centres are dying and there is nothing they can do about it, well there is our opportunity gone to do something about it. It’s frankly ridiculous that RBC have to be held to ransom on this need to tick boxes with the number of housing units built and give away potential public area to accommodate it. It’s incredible that the other already planned residential developments in the town centre still don’t seem to be enough to fulfill what the government wants from the borough.
Green Park should have been the residential development, although I forget, in the south east we can’t possibly build houses in areas without access to london as local working people might buy them, no money in that!
I’m a cynic I know but the future looks pretty dull for Reading.
Cheers for the update
LikeLiked by 1 person
Whilst having a derelict shopping centre and car park isn’t helping the area this really is a wasted opportunity for our ‘city’ centre. We have waited years for something exciting to really kick the area on and we just get some Chatham place esque flats.
There’s nothing that stands out in this development of particular note. This could be Bracknell, Basingstoke or Slough.
This area should be the solution to Readings appalling lack of leisure related activities and IMO is a further nail in the coffin for Reading as just a place to eat or drink.
But hey it looks like something is being built so congratulations to the developers the war of ‘doing nothing’ attrition has been won. 😤
LikeLiked by 1 person
Not good, not bad, ordinary. Better than what’s there now, which isn’t saying much. Station Hill is about the only site near the town centre that would take a really decent tall building and this is what ought to go there.
LikeLiked by 1 person
The perfect site for an iconic tall building. If anyone can remember that far back, we actually had one in Great Western Tower. Okay, it dated but it provided huge amount of office space and brought lots of people in to work in Reading in its heyday. I know that apartments rather than retail and office space make money these days, but these proposals are bland beyond belief. Reminds me of the awful block that replaced the Odeon cinema, but on a huge scale.
What benefit are they to the town of Reading? What do they actually achieve for us? Other than filling in a hole.
LikeLiked by 1 person
God that’s depressing. The facades are as busy and plain ugly as those on the Verto. I can only imagine it’s very cheap to build.
Overall the plan is a real waste of space.
But given Crossrail as been delayed until 2021 at the earliest I imagine this may never be built. Here’s hoping!
LikeLike