
I find whales fascinating. (Bear with me.) After millions of years, fish evolved into creatures that ultimately ventured out of the water onto land. We lost the gills, gained some lungs, and mammals then roamed the earth. Some of those mammals then stumbled across the oceans and quite enjoyed a swim, eventually giving up the land entirely for an evolutionary path leading to whales. Over a slightly shorter timeframe, we’ve seen the street food concept burst out of the kitchen to roam free. Yet apparently now it’s ready for a further progression – heading back indoors. Like the whale, street food appears to have gone full circle, lured to return to its physically constrained origins. Okay. Tenuous. But you’d get bored with yet another “I’ve just spotted a new planning application…” post wouldn’t you?
Getting to the point, City Pub Group has applied for permission to convert the former Lloyds bank on Market Place into a food hall, hotel and rooftop bar. The application describes the concept in more detail:
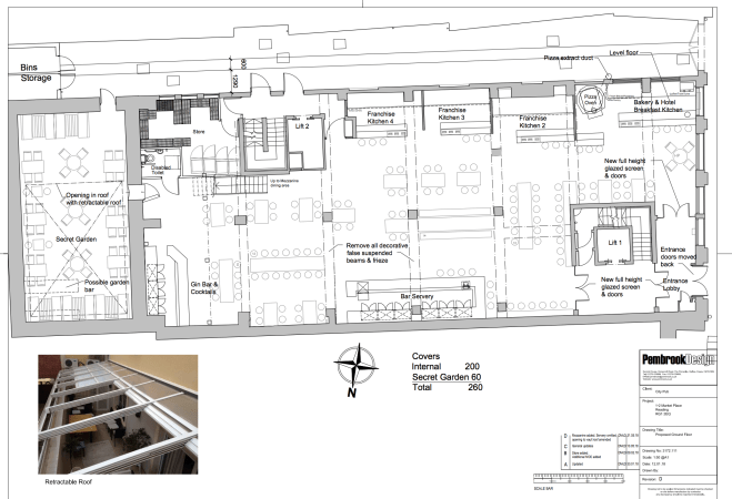
The ground floor will be remodelled to provide the main food and drinking hall. It will involve the removal of the modern partitions, suspended ceilings, and decorative plaster cast moulding on the ceiling to create a room which retains the scale and grandeur of the banking hall space.
The proposal is essentially an extension of the Market Square on which the building sits. The intention is to create a permanent internal food market with a modern twist. The venue will feature a permanent, artisanal bakery, café, and pizza stall (all one stall), plus three further stalls that will rotate regularly to allow an ever-changing range of Streetfood-style food offers that can be altered as the seasons and consumer trends dictate. These stalls will have a very defined niche, such as vegan food, Asian curries, gourmet burgers, smoked meats etc, and offer small, focussed menus with an emphasis on quality, healthy options that are quick to prepare.
The bakery will open for breakfast for hotel guests as well as non-residents, and provide a selection of breads, pastries, brunch items, gourmet sandwiches, authentic pizzas, hot beverages, and juices/smoothies. This area at the front of the building – which does not feature a bar – will be open from 7am, whilst the rest of the ground floor will open at 11am.
There will be a main bar featuring a range of independent cask and craft beers, a carefully curated wine list, a wide range of premium spirits and cocktails, and healthy smoothies and juices. In addition, there will be a second satellite bar that can be changed and which will be focussed on a particular product (e.g. gin bar or cocktail bar).
The emphasis is on flexibility, so a group of friends can all sit together and enjoy food from whichever kitchen (or kitchens) they choose, mix and matching as they wish.
All of the stalls and bars will open out onto the central area which will create the marketplace feeling, an extension of the existing market outside. The central area will consist of seating with lots of nooks and crannies, so guests can choose to sit in a busy, buzzing atmosphere, or a quieter laid back atmosphere.
The rear of the ground floor will see the former bank vault transformed into a secret garden with a retractable roof, a small open area for al-fresco drinks and dining.
Here is the proposed floor plan for the ground floor, including 260 seats.

It’s a really interesting concept, with the three “franchise kitchens” – essentially street food stalls operating on a short term basis. It could be a great way to keep the offer fresh, and if nothing else, keep Edible Reading busy!
The upper floors are proposed as a boutique hotel, with just 24 rooms. Then the top floor would become a bar.
Within the small third floor level it is proposed to create an intimate cocktail bar, opening out onto an external roof terrace which is furnished with seating booths. The bar will have a sophisticated feel, in keeping with what is expected of a premium boutique hotel such as one of the Soho House venues. The bar will be available to both hotel guests and non-residents, and can be accessed from all floors by both lift and staircase.
Meanwhile, a revised scheme for the Broad St Mall shipping container market has emerged. The containers have been re-arranged into a perimeter block, creating a space in the centre including, intriguingly, allowing space to re-instate the staircase down into the abandoned Target pub. Whilst this is presented as a future option, I’m optimistic it hints at a nearer term plan to bring that space back into use.
Also new within this scheme is a grander “clock tower’ entrance building (but yes, it’s still supposedly a temporary 5-year construction), and direct access from the top floor into the upstairs of the mall itself. We also have a name – “The Yard”.

There appears to be more space allocated to seating, indicating a potential shift away from general merchandise retailing into street food market stalls, with the majority of the benches under cover from the storeys above.

Clearly, both sites would provide highly welcome and innovative additions to the town centre. As the retailers struggle to survive, the sooner we can kick-start this reinvention to boost footfall the better. Following the proven demand demonstrated by our local Blue Collar, it seems bringing street food indoors is a trend worth exploiting, and I’m confident RG1 could support multiple such ventures. But first-to-market advantage is up for grabs… hopefully we’re not left waiting for evolutionary timescales.
Comments welcome and can be left below (without registration!)
Follow @readingonthames
Wow, love it! What an exciting and very welcome development!
LikeLiked by 1 person
It sounds generally interesting – but there’s a throw away line about removing the decorative plasterwork in the bank lobby. That’s surely the most interesting thing about the interior of the building – why get rid of it?
LikeLiked by 2 people
Yes, I did wonder about that too. It would be interesting to know.
LikeLiked by 1 person
Sounds like a smaller version of something like the TimeOut market in Lisbon (https://en.m.wikipedia.org/wiki/Time_Out_Market_Lisboa) which is great
LikeLiked by 1 person
Yes, I’ve been to TimeOut market in Lisbon – it’s a wonderful place. This Market Place idea is many times smaller (200 seats & 4 kiosks vs 750 & 30+ at TimeOut). But the market hall concept is definitely a big new trend, and I expect larger venues to spring up around larger regional cities. I think Reading could support one, so hopefully Market Place (& The Yard) will prove the demand!
LikeLike
Interesting about the old Lloyds bank. Good luck to the application, with caveats. Call me curmudgeonly, but the thing reeks of sales and marketing people sitting in a meeting room. Key worry words are: market, modern, artisanal, Streetfood (sic)-style, offers, seasons, consumer trends, quick to prepare, gourmet, authentic. I could go on.
The blurb gives the impression somehow that this rotating ‘offer’ of food may somehow be linked to the concept of street food. I’m afraid it won’t. Having had some experience of Compass Group’s rotating ‘offers’ within the corporate office environment, I’ve a fairly good idea what this means. Don’t expect local street food vendors to be asked to be contribute.That’s not to say the food will be necessarily poor, but simply predictable.
As for being an extension of the Market Place, it won’t since it’s behind doors and a lobby.
Also, as previously mentioned by Mary Says, why the removal of original fixtures and fittings? The Blagrave should be enough of a lesson as to where this leads. Assume to make way for aircon, kitchen ventilation etc. Should we picture ‘artisinal’ aluminium ducting front to back?
On the plus side, the garden at the rear might be good. City Pub Company also don’t seem to be owned by a private equity fund which is nice. An idea of their ethos might be found here: http://www.citypubcompany.com/investors/
With regard to the ‘container market’, I looked at the revised plans (how many now?) with the apparent extra seating and agree with you about a possible shift to food. That’s rather worrying. Reading town centre needs above anything else cheap retail units. The town surely can’t be maintained on food and craft beer alone, when large retail units are remaining empty and rents are still at unrealistic levels? Won’t people stop coming if there aren’t any shops, and no tourism? Will food be enough?
LikeLiked by 1 person
Thanks for your thoughts RS. Agree the blurb is slightly pretentious, but I’m optimistic that the underlying concept is the sort of innovation we should get behind.
Interesting question about whether food alone is enough to draw people into town in the first place. I’ve always assumed the shops to be the draw, and food to be something people just need whilst they’re here. Yet I suspect for some people it genuinely is the other way around these days. But I agree with your broader point – a compelling retail offer is still critical. We need to preserve and enhance that, but equally future-proof the town centre by developing the leisure and cultural side.
LikeLiked by 1 person
Alas there doesn’t seem to be much in the way of developing the leisure and cultural side of Reading. What’s happening with the ‘Abbey Quarter’ is great and respect is due to those involved, but I don’t think it will attract that many people, or profoundly change the perception that most people, nation wide have of Reading (that is, profoundly interesting historical centre vs humdrum shopping town).
Completely understand your point about food being the primary draw for some. If post-Crossrail worst case scenario manifests then that can only increase I guess. I personally find that tragic when the eating opportunities in Reading are so indoors and mostly so bland.
To sum it up from my probably jaundiced perspective, Future Reading will have little acknowledgment of heritage, no shops, no big entertainment venue, bad traffic, bad pollution, a lack of identity across the UK, lots of chain restaurants, many residential developments close to the station and a continuous cycle of empty office block development……Still, lots of AA meetings so that’s good.
LikeLike
I don’t agree that Reading needs cheap retail units. I personally think that with the highstreet heading the way it is, Reading needs to evolve and push towards attracting the young professional market that want exciting food and drink, rather than a cheap market stall that sells the same stuff as eBay, for triple the price.
LikeLiked by 1 person
[…] Street Food heading indoors […]
LikeLike
If this is going to be anything like Johannesburg Arts on Main or Brixton Village undercover food restaurants and gourmet burger offerings, one off pizza places and box park (PLUS VEGAN OPTIONS yay!)… ignore all the negative comments let’s make this happen! Keep it fresh no corporate – inject all the character and individuality and i’ll be there every weekend! Loving the plans
LikeLiked by 1 person